Не упусти свой шанс! Последние акции от застройщиков  ▼

Продается 2-комнатная квартира, д., 20

13 999 999 Р

Сапроново д. (Ленинский гор. округ)

Дата публикации: 8 февраля 2026

Дата обновления: 1 марта 2026

Телефон: 
Показать телефон

+7 (966) 336-81-43

Агентство:  ГОРОБМЕН

Название: ЖК "Видный берег"

От застройщика: 0 квартир в продаже

Этаж: 9 / 17

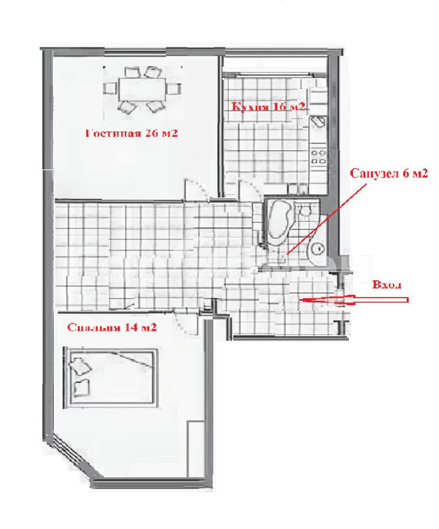
Общая: 75 м2

Жилая: 40 м2

Кухня: 16 м2

Комнаты: 14 26 м2

Балкон/лоджия: лоджия

Лифт: есть лифт

Окна: окна во двор

Санузел: совмещенный

Мусоропровод: нет

Состояние квартиры: евроремонт

Тип дома: монолитный

Год постройки: 2016

Территория: не указано

Парковка: не указано

Статус сделки: продажа

Сделка: прямая продажа

Собственность: не указано

Основание права собственности: не указано

Описание

ОПЕРАТИВНЫЙ ПОКАЗ! ПОЛНАЯ СУММА В ДОГОВОРЕ!!МЕДНАЯ ЭЛЕКТРОПРОВОДКА!
Продаю Двухкомнатную квартиру на 9 этаже 17 этажного МОНОЛИТНОГО ДОМА в ЖК ВИДНЫЙ БЕРЕГ не далеко от реки КУПЕЛИНКА РЯДОМ С РПАРКОМ! Окна во двор! В квартире очень тихо.
Общая площадь квартиры 75 м2, из них жилая 40 м2. Спальня 14 м2. Просторная гостиная 26 м2. Большая кухня 16 м2 с выходом на застеклённую лоджию. Современный кухонный гарнитур со всей необходимой НОВОЙ бытовой техникой(варочная панель, духовка, вытяжка, посудомоечная машина, СВЧ, холодильник..) ПРОСТОРНЫЙ совмещённый туалет 6 м2.
В КВАРТИРЕ СДЕЛАН КАЧЕСТВЕННЫЙ ЕВРОРЕМОНТ РЕМОНТ 2018 году с использованием ДОРОГИХ И ЭКОЛОГИЧЕСКИ ЧИСТЫХ МАТЕРИАЛОВ. Сделано выравнивание стен и пола, медная электрическая проводка, ламинат, итальянская плитка, многоуровневые потолки. Пластиковые окна REHAU с двухкамерным стеклопакетом сохраняют тепло зимой. БАТАРЕЙ ТОПЯТ ХОРОШО! В гостиной установлен КОНДИЦИОНЕР!
КВАРТИРА УКОМПЛЕКТОВАНА НЕОБХОДИМОЙ НОВОЙ МЕБЕЛЬЮ!
ЧИСТЫЙ ПОДЪЕЗД БЕЗ ПОСТОРОННИХ ЗАПАХОВ!! Тихие соседи!
Есть много свободных парковочных мест вокруг дома. Большая детская площадка.
Развитая и сложившаяся инфраструктура в шаговой доступности: сетевые супермаркеты (Пятёрочка, Верный, Перекрёсток), сады, школы, зоомагазин, аптека, салоны красоты, пекарня, кафе и рестораны, фитнес-клуб с тренажёрным залом, поликлиника, остановка общественного транспорта и многое другое.
Недалеко расположен благоустроенный Видновский лесопарк - чудесное место для отдыха и прогулок с детьми. Хорошее освещение . Есть велодорожки. Места для отдыха с удобными скамейками. Множество аттракционов! Благоустроенная и красивая набережная реки КУПЕЛИНКА.
УДОБНАЯ ТРАНСПОРТНАЯ ДОСТУПНОСТЬ:
- маршрутки до м. Анино, м. Красногвардейская, м. Домодедовская;
- ж/д станция Расторгуево;
- удобный выезд на трассу М4 - ДОН.

Квартира на карте

ПанорамыКарта
Спецпредложения
Добавить объявление