Калинина станция (26 мин. пешком)
Расторгуево станция (5 мин. транспортом)
Битца метро (МЦД-2) (13 мин. транспортом)
Домодедовская м. (13 мин. транспортом)
Сапроново д. (Ленинский гор. округ)
ЖК "Видный берег"
Дата публикации: 15 января 2026
Дата обновления: 1 февраля 2026
+7 (925) 616-67-08
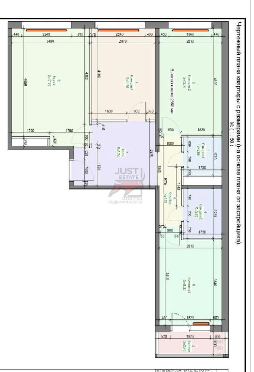
Название: ЖК "Видный берег"
От застройщика: 0 квартир в продаже
